Location:
Status:
Status:
Boswell, Indiana
Conceptual
Conceptual



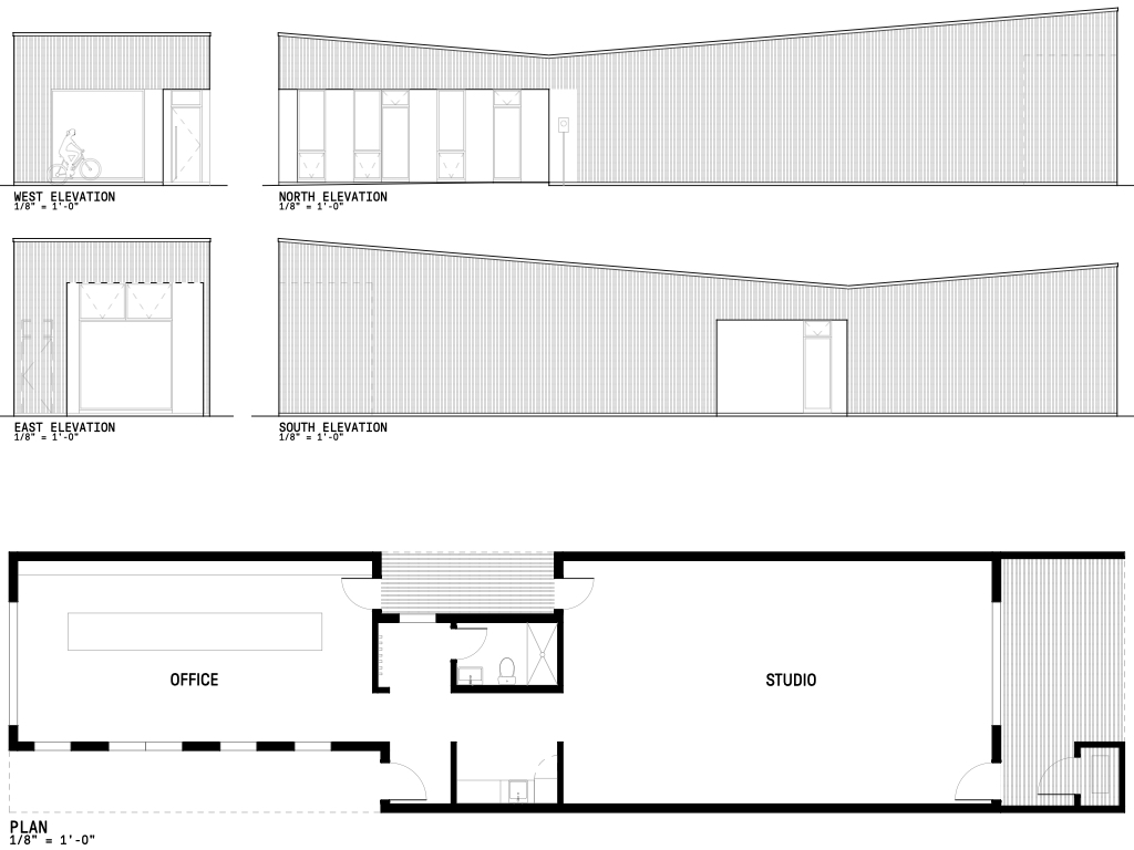
Studio / Office is a new office and artist studio located in Boswell, Indiana. The main entry is located in the center of the building, allowing for a central core that can service the two main spaces. For future flexibility, these two spaces may accomodate separate tenants. The exterior front entry court and building setback respond to the face of the adjacent library and library entrance allowing for code compliant windows and southern light. The design of the building reflects a modern update on the vernacular and rural shed typology. The building is detailed for resilience and sustainability.